Design 2C #1-249

Starting at $2,108
1,200 Sq. Ft. | 2 Bed | 2 Bath
Available May 8

Features

  • Kitchen and Bath

    • Appliances Stainless Steel
    • Countertops Granite
    • Primary Bath Tub
    • Dark Finish Cabinets
  • Home Attributes

    • Washer Dryer
    • Walk-In Closet
  • 2D Diagram
  • 2D Diagram Furnished
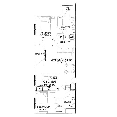
The Haven - Denver, CO - Diagram

Design 2C

This two bedroom floor plan features a spacious primary suite with a private bath, large closet, and a centrally located utility area with washer and dryer. It also includes an open living and dining space connected to a balcony, a second bedroom near a full bathroom, and a kitchen with a generous island and pantry space.

The Haven - Denver, CO - Furnished Diagram

Design 2C

This two bedroom floor plan features a spacious primary suite with a private bath, large closet, and a centrally located utility area with washer and dryer. It also includes an open living and dining space connected to a balcony, a second bedroom near a full bathroom, and a kitchen with a generous island and pantry space.

*Apartment prices, availability and terms are subject to change without notice. Apartment photos and floor plans are for illustrative purposes only. Actual square footage, layout, and property or apartment features may vary.