Design 2D #2-317

Starting at $2,138
1,260 Sq. Ft. | 2 Bed | 2 Bath
Available Jun 5

Features

  • Kitchen and Bath

    • Appliances Stainless Steel
    • Countertops Granite
    • Primary Bath Tub
    • Dark Finish Cabinets
  • Home Attributes

    • Washer Dryer
    • Walk-In Closet
  • Premium Features

    • View Courtyard
  • 2D Diagram
  • 2D Diagram Furnished
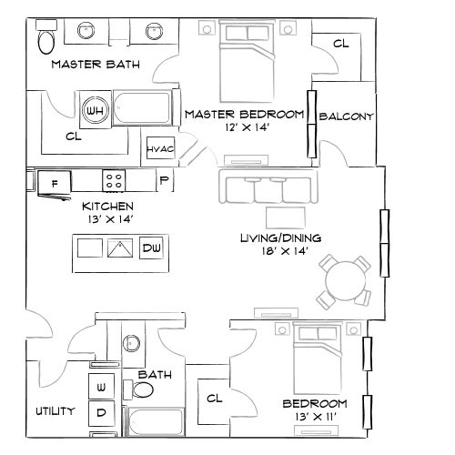
The Haven - Denver, CO - Diagram

Design 2D

This two bedroom floor plan features a spacious primary suite with a large closet, dual vanity in the primary bath, and access to a private balcony. The layout also includes an open living and dining area beside a centrally located kitchen with an island, plus a second bedroom, full bathroom and a dedicated utility room with washer and dryer.

The Haven - Denver, CO - Furnished Diagram

Design 2D

This two bedroom floor plan features a spacious primary suite with a large closet, dual vanity in the primary bath, and access to a private balcony. The layout also includes an open living and dining area beside a centrally located kitchen with an island, plus a second bedroom, full bathroom and a dedicated utility room with washer and dryer.

*Apartment prices, availability and terms are subject to change without notice. Apartment photos and floor plans are for illustrative purposes only. Actual square footage, layout, and property or apartment features may vary.